To project page
VERKAUFT
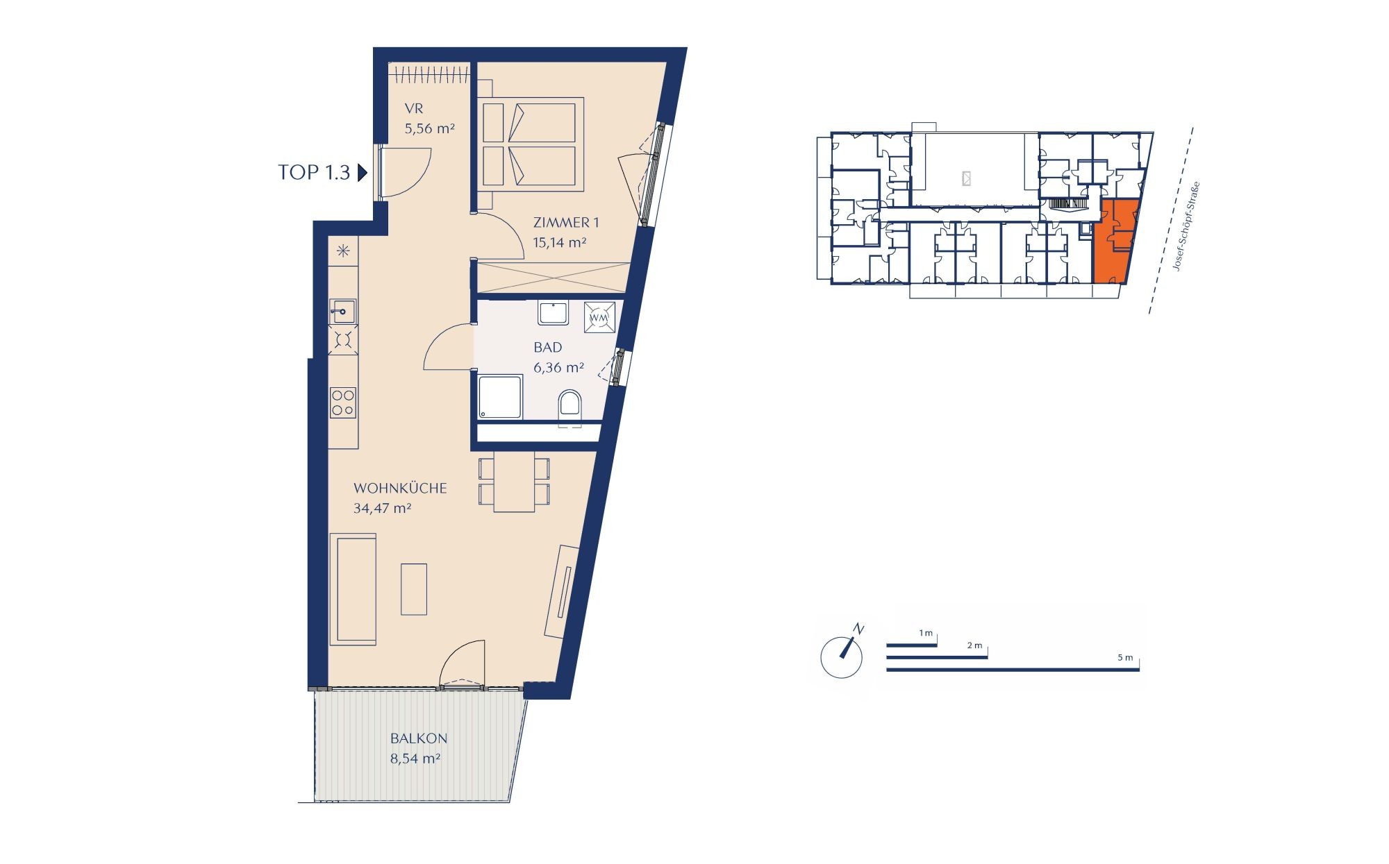
Josef-Schöpf-Straße 8 Top 1.03
Josef-Schöpf-Straße 8 , 6410 Telfs
Sold
Josef-Schöpf-Straße 8 Top 1.03Josef-Schöpf-Straße 8 , 6410 Telfs
- Rooms2
- Living area61.53 m²
- Balcony size8.54 m²
- Floors1. Floor
- Purchase contract costs 1,8%€ 3.640
- Property transfer tax 3,5%€ 11.029
- Land registration fee 1,1%€ 11
- Total price€ 378.669
Finanzierungsrechner

Der Weg zu Ihrem Eigenheim
Wir wollen den Weg zu Ihrem neuen Eigenheim für Sie so angenehm und transparent wie möglich gestalten – von der Wohnungssuche bis zur Schlüsselübergabe. Wir begleiten Sie Schritt für Schritt zu Ihrer Eigentumswohnung.




